This ERA Deadbolt multipoint door lock features 2 Hooks, 1 Deadbolt & 1 Latch.
ERA multipoint door locks are some of the most popular on the market in the UK. Identifying an ERA multipoint door lock can be straightforward but there are some traps to watch out for.
The first trap is that ERA make locks for a huge number of different door and window companies, many of whom rebrand the locks. Often faceplates are stamped with the ERA logo, but they can also be stamped with brands such as Surelock, Saracen, Spartan, Duraflex, Supa, Westward or Cego, to name but a few.
A good indication as to whether the lock you are identifying is made by ERA is the holdback snib on the faceplate. This is often grey on deadbolt and hook bolt locks and blue on Vectis locks. However, some of the brands named above have changed the colour of the snib to black or green.
Its also worth noting that sometimes ERA locks are referred to Saracen. This harks back to the days when Laird made locks for the double glazing industry, before they were rebranded as ERA.
Most latch & deadbolt ERA multipoint locks feature a split spindle mechanism which makes replacements easier as you only need to be concerned with one locking function. This doesn’t include the SureFire locks, the automatic locking locks and parts 7135113479 and 7145113479, which are lift lever operation.
We’d always recommend removing the multipoint from the door to help identify it. This is especially important if you can’t identify the brand from the faceplate or it has been rebranded.
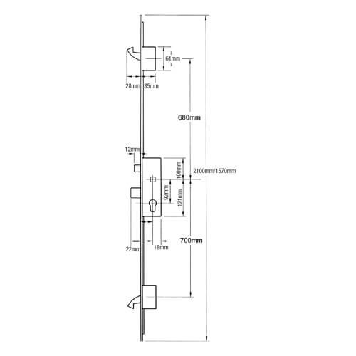
ERA multipoint door lock gearboxes are very distinctive, with a square design and no corner cut outs. The overall length of the gearbox is 221mm and the width is the backset plus 18mm.
Available in 30mm, 35mm or 45mm backsets, all ERA gearboxes have the same dimensions. They can feature a classic deadbolt with either a standard euro cut out, Invincible cylinder cut out or Vectis 5 lever mechanism. They can feature either a deadbolt or hook bolt (which throws upward). Look out for the British Standard Fortress invincible gearbox which features hardened drill plates.
With the exception of the British Standard Fortress lock and the SureFire, all ERA gearboxes can be interchanged, so if your client needs a hook lock, instead of a deadbolt or a Vectis locking multipoint door lock, contact us and we’ll build the lock to order.
ERA multipoint door lock gearboxes feature a 24mm high latch (with 2 distinctive screws in the latch), a 30mm high deadbolt and 61mm between them. Gearboxes are held on to the faceplate with 4 screws, which is unusual for a multipoint door lock. The first screw hole to the second measures 37mm, the second to the third measures 85mm and the third to the fourth screw measures 43mm.
When measuring the backset, allow 2-3mm for the faceplate, so a 35mm backset gearbox will measure 32mm when not fixed to the strip.
ERA Multipoint locks feature two different hook locking arrangements.
The first is a standard hook which features one of the smallest hook cases on the market. They are really useful when replacing an obsolete lock and the routing is tight.
The second type of hook is a security steel hook, which features a much larger hook case. Upgrading from a small hook to large hook lock can require a little work to the door, to allow the larger hook cases to fit.
All ERA hooks a bi directional, with the top hook throwing upwards and bottom hook throwing downward, for higher security.
ERA Multipoint door lock deadbolts (referred to by ERA as linear bolts) feature an 18mm throw and are chamfered to pull the door against the frame.
Deadbolt locks are most frequently found fitted to timber and composite doors.
Operation: Split Spindle
To lock the door
1. Lift the handle upwards to engage the locking points.
2. Lock the locking points and main deadbolt (if present) by turning the key.
To unlock the door
1. Unlock the system by turning the key.
2. Push the handle downwards to disengage the locking points and retract the latch.
- Meets the requirements of BS EN 1670:2007 Grade 4 Corrosion Resistance (240 hours).
- Endurance tested to 50,000 cycles
- Designed to meet the requirements of a PAS24:2012 compliant door set.
We stock a range of associated products for ERA Deadbolt multipoint door locks, including keeps, spindles, handles and accessories.
You may find this lock used as an UPVC door lock, an aluminium door lock, a timber multipoint door lock or a composite door lock .


















There are no reviews yet.